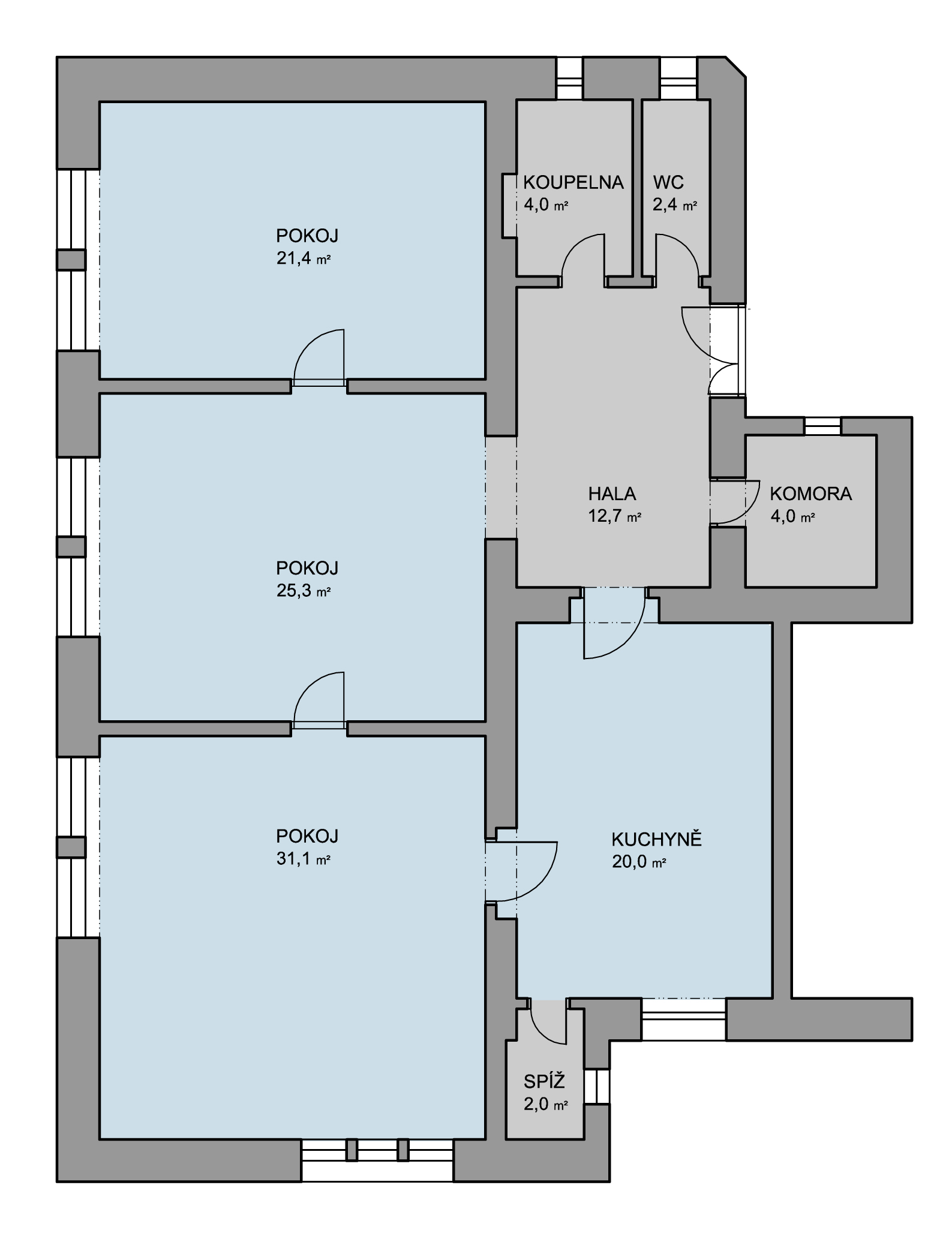
Dispoziční varianty nemovitostí (sekce do 150m2)
Za účelem prodeje delší dobu neprodejných nemovistostí, byly navženy dispoziční varianty podle obecného zadání: varianta open space, varianta optimal, variant maximum. Sekce do 150m2.
Ing.arch et Ing. Markéta Veselá
STUDIE, PRAHA, 2009
