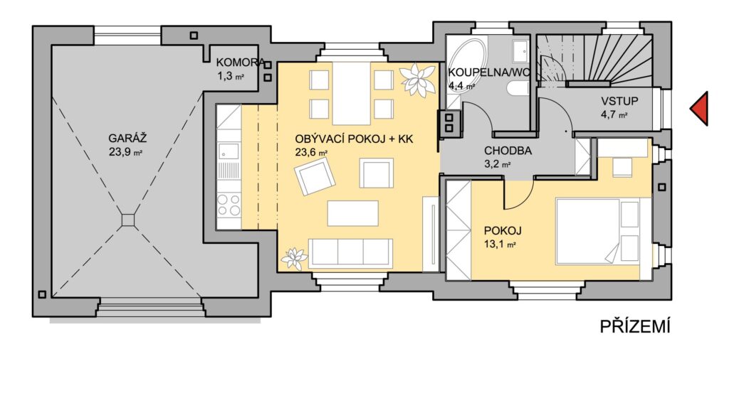
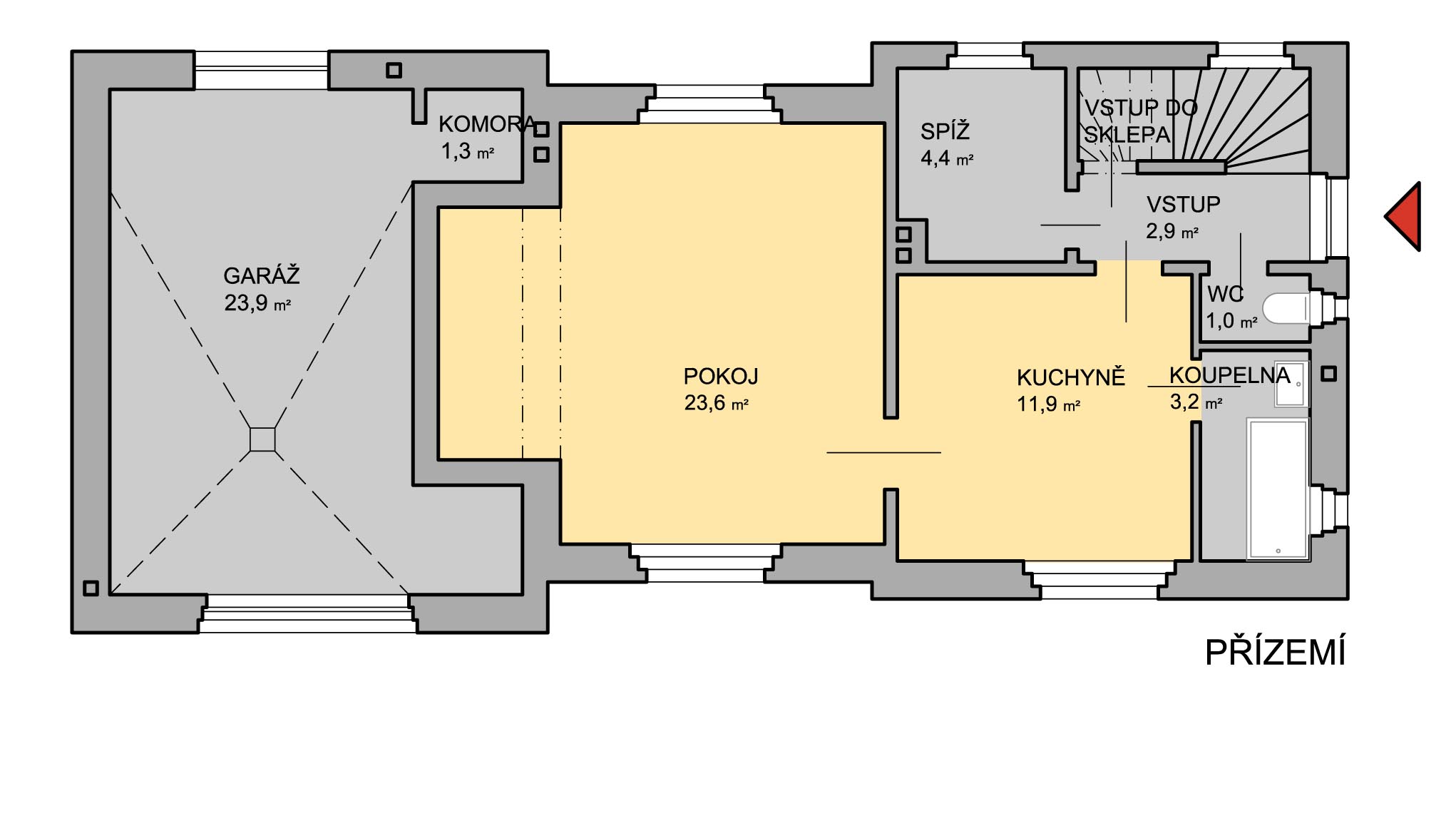
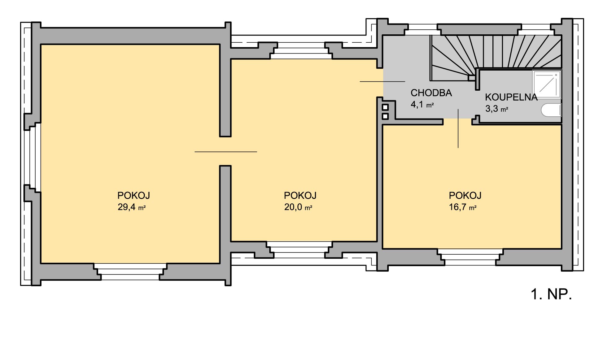
Dispoziční varianty (sekce do RD)
Za účelem prodeje delší dobu neprodejných nemovistostí, byly navženy dispoziční varianty podle obecného zadání: varianta open space, varianta optimal, variant maximum. Sekce do RD.
Ing.arch et Ing. Markéta Veselá
STUDIE, PRAHA, 2009
