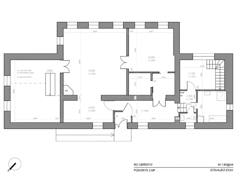
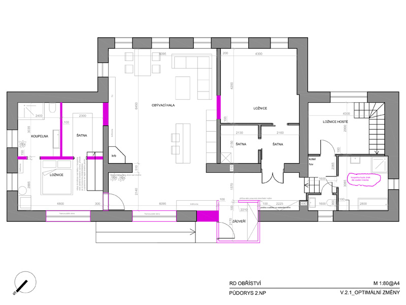
Byt Obříství
Přemístění kuchyně a nová manželské ložnice s koupelnou ve variantách. K vybrané variantě zpracována detailní dokumentace.
Ing.arch et Ing. Markéta Veselá
ARCHITEKTONICKÁ STUDIE, PRAHA, 2015
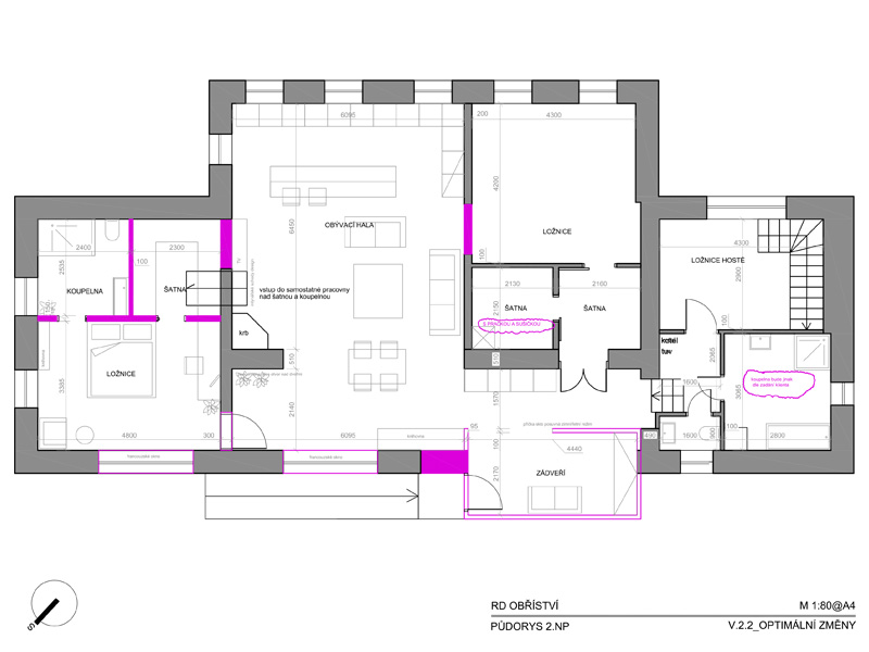
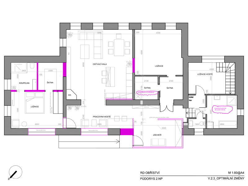
Přemístění kuchyně a nová manželské ložnice s koupelnou ve variantách. K vybrané variantě zpracována detailní dokumentace.
Ing.arch et Ing. Markéta Veselá
ARCHITEKTONICKÁ STUDIE, PRAHA, 2015