Byt Ovenecká
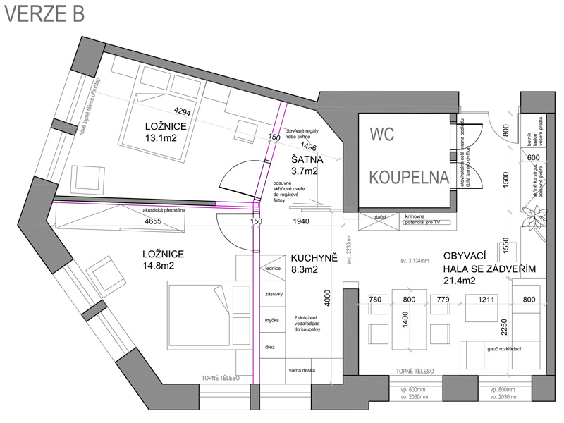
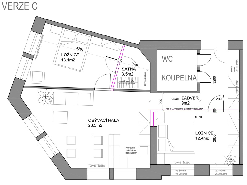
Rekonstrukce bytu za účelem vyčlenění další ložnice. Architektonická studie ve variantách. Detailní zpracování výsledné varianty včetně rozpočtu.
Ing.arch et Ing. Markéta Veselá
REALIZAČNÍ DOKUMENTACE, PRAHA, 2017
Rekonstrukce bytu za účelem vyčlenění další ložnice. Architektonická studie ve variantách. Detailní zpracování výsledné varianty včetně rozpočtu.
Ing.arch et Ing. Markéta Veselá
REALIZAČNÍ DOKUMENTACE, PRAHA, 2017