Půdní vestavba Teplice
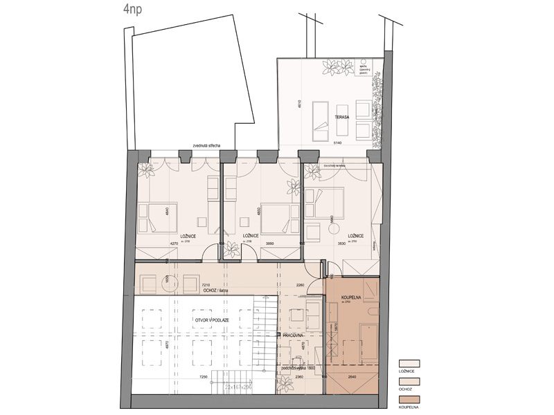
Půdní vestavba mezonetového bytu se samostatně přístupnou kanceláří a pokojem pro hosty. Ve spodním podlaží došlo k rozsáhlému vybourání konstrukcí, aby vznikl velký obývací prostor s otevřeným schodištěm. Manželská ložnice v horním podlaží disponuje soukromou terasou do vnitrobloku.
Ing.arch et Ing. Markéta Veselá
ARCHITEKTONICKÁ STUDIE, PRAHA, 2016
