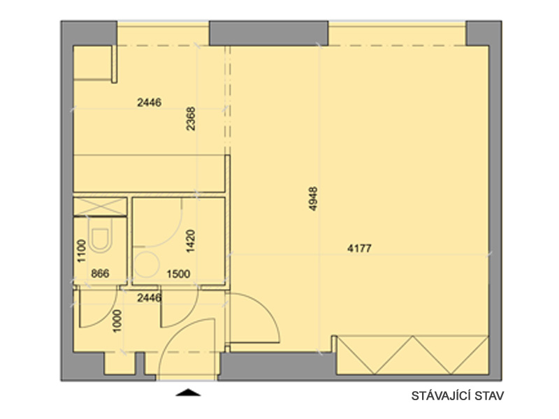
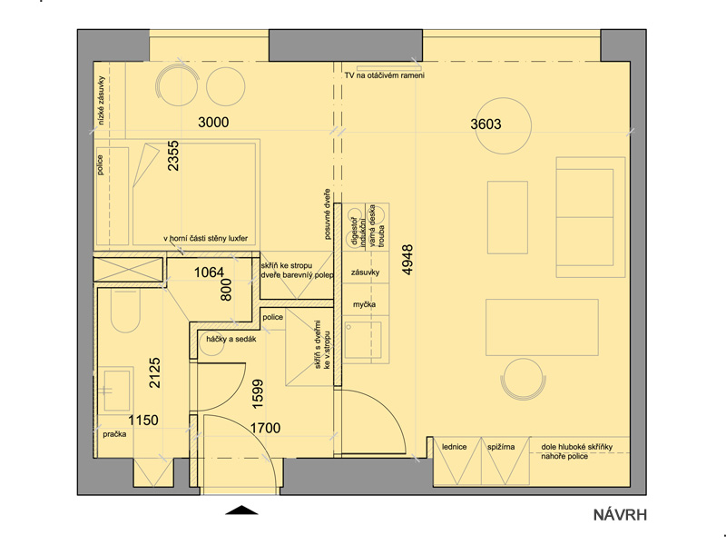
Byt na Vyšehradě
Kompletní rekonstrukce bytu v cihlovém domě o celkové ploše 43m2. Cílem návrhu je vytvořit byt pro dva uživatele. V návrhu je větší koupelna a kuchyně je umístěna v obývacím prostoru, aby bylo možno vytvořit samostatnou ložnici.
Ing.arch et Ing. Markéta Veselá
REALIZAČNÍ DOKUMENTACE, PRAHA, 2013
