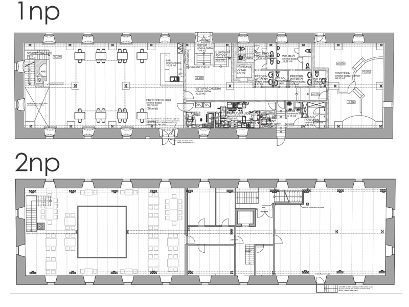
REKONSTRUKCE RENESANČNÍ SÝPKY
Rekonstrukce renesanční sýpky a přilehlých prostor. Část objektu zůstane zachována v původním stavu pro expozici dobových nástrojů. V ostatních částech objektu budou hotelové pokoje, školící centrum a restaurace. Rekonstrukce bude probíhat v dobovém duchu.
Ing.arch et Ing. Markéta Veselá
REALIZAČNÍ DOKUMENTACE, BŘEZNICE, 2010-2013
