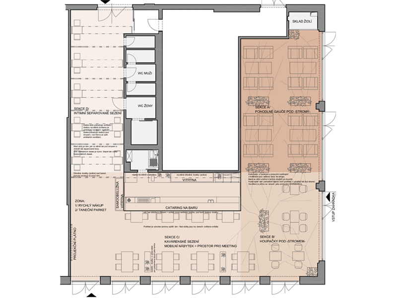
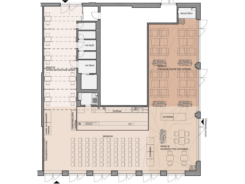
KAVÁRNA V ADMINISTRATIVNÍM KOMPLEXU
Zadáním bylo vytvoření atraktivnějšího interiéru za účelem zvýšení návštěvnosti i mimo hlavní obědový čas. Čehož bylo docíleno rozdělením na sekce, které zajišťují více soukromí a lepší přizpůsobení se typu obchodní nebo přátelské schůzky. Současně je zde kalkulováno s možností pořádání větších prezentací a projekcí.
Ing.arch et Ing. Markéta Veselá
Veselá, Hájková – ARCHITEKTONICKÁ STUDIE, PRAHA, 2016
