RD Ostašov
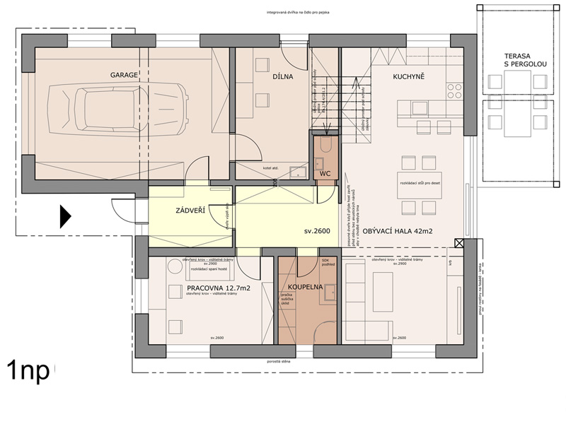
Navrhovaný RD má dvě nadzemní podlaží. Druhé nadzemní podlaží je odstoupené. Důvodem bylo rozsáhlé zadání provozů s požadavkem na jejich umístění do spodního podlaží. V 1np se kromě obývacího prostoru a terasy s pergolou nachází také pracovna s odděleným provozem od obytné části. Dále pak garáž s dílnou. Ve 2np jsou ložnice.
Ing.arch et Ing. Markéta Veselá
ARCHITEKTONICKÁ STUDIE, PRAHA, 2016
