RD Postřižín
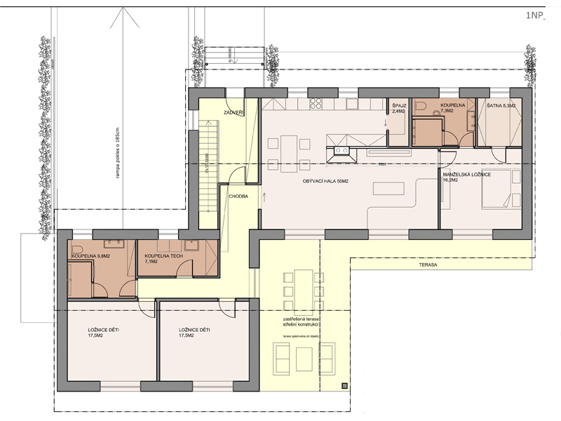
Rodinný dům je navržen jako bungalov s otevřeným krovem. V 1pp se nachází rozsáhlé skladovací prostory a garáž pro tři auta. Objekt je půdorysně rozdělen do dvou vzájemně posunutých částí, aby vznikl dostatek místa pro vjezdovou rampu a současně zůstala zachována co největší plocha zahrady za domem, kde v zákoutí vzniká krytý prostor pro zastřešenou terasu. Dům je takto umístěn i s ohledem na sklon terénu. U ulice je terén níž, takže vjezdová rampa může být kratší a sklepní prostory zde mohou mít okna.
Ing.arch et Ing. Markéta Veselá
ARCHITEKTONICKÁ STUDIE, PRAHA, 2019
