RD Satalice
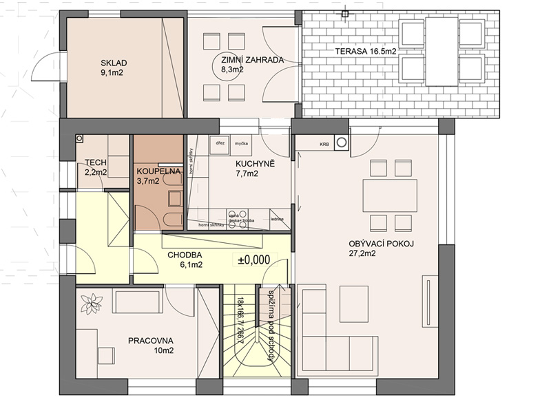
Rodinný dům se zimní zahradou a částečně zastřešenou terasou na nevelkém pozemku. Parkování je řešeno pod pergolou.
Ing.arch et Ing. Markéta Veselá
Ing.arch et Ing. Markéta Veselá, Ing.arch Vajnerová
DSP, PRAHA, 2019
Rodinný dům se zimní zahradou a částečně zastřešenou terasou na nevelkém pozemku. Parkování je řešeno pod pergolou.
Ing.arch et Ing. Markéta Veselá
Ing.arch et Ing. Markéta Veselá, Ing.arch Vajnerová
DSP, PRAHA, 2019