RD Suchdol
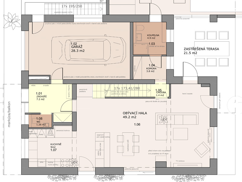
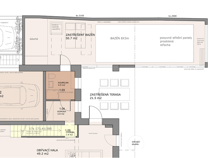
Tří podlažní rodinný dům s ustupujícím podlažím a zastřešeným bazénem. V 1np se nachází obývací hala s kuchyní. Terasa je zastřešena a navazuje na prostor bazénu. Koupelna je zde řešena jako průchozí mezi obytnou částí a bazénem, aby se její provoz zbytečně neduplikoval, a současně tvoří jakousi clonu před pronikáním vlhkosti do obytných prostor.
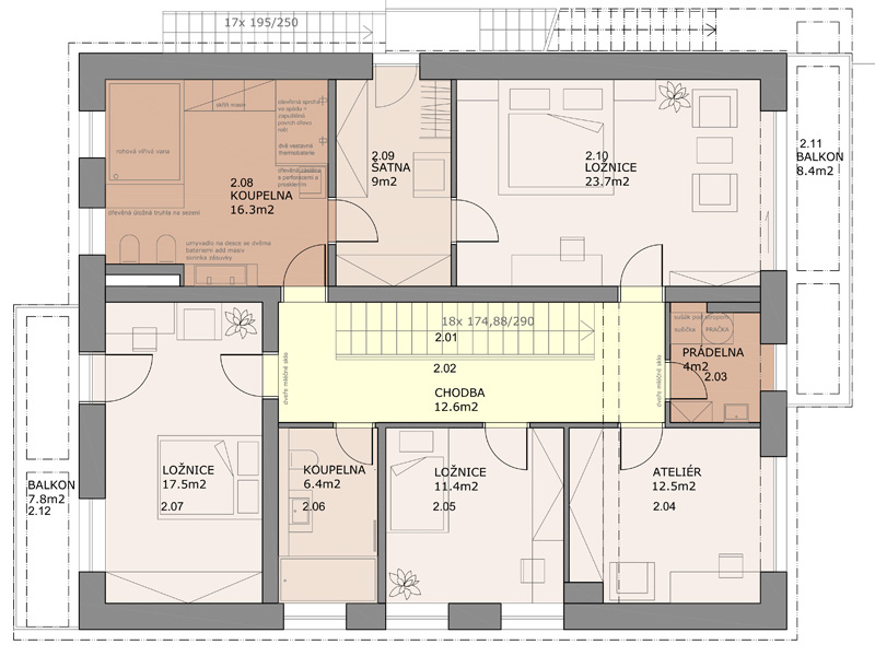
Ve 2np se nacházejí ložnice. Každá má balkon. Balkon do ulice současně zastřešuje vstup a druhý do zahrady zastřešuje terasu.
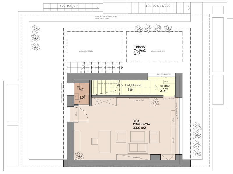
Třetí podlaží je ustupující, aby dům vizuálně lépe reflektoval okolní zástavbu a aby vznikla terasa s výhledem. Zde je umístěna pracovna, která je současně přístupna z terénu po venkovním schodišti.
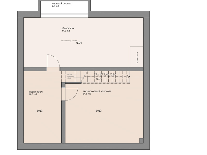
Ve sklepě se nacházejí technické provozy a tělocvična s anglickým dvorkem. Garáž je navržena pouze pro jedno auto. Druhé bude parkovat pod pergolou. Těleso pergoly a bazénu se saunovým provozem má takovou konstrukční výšku, aby vyhovělo jeho umístění na hranici pozemku.
Ing.arch et Ing. Markéta Veselá
DSP, PRAHA, 2018
