RD Zeleneč
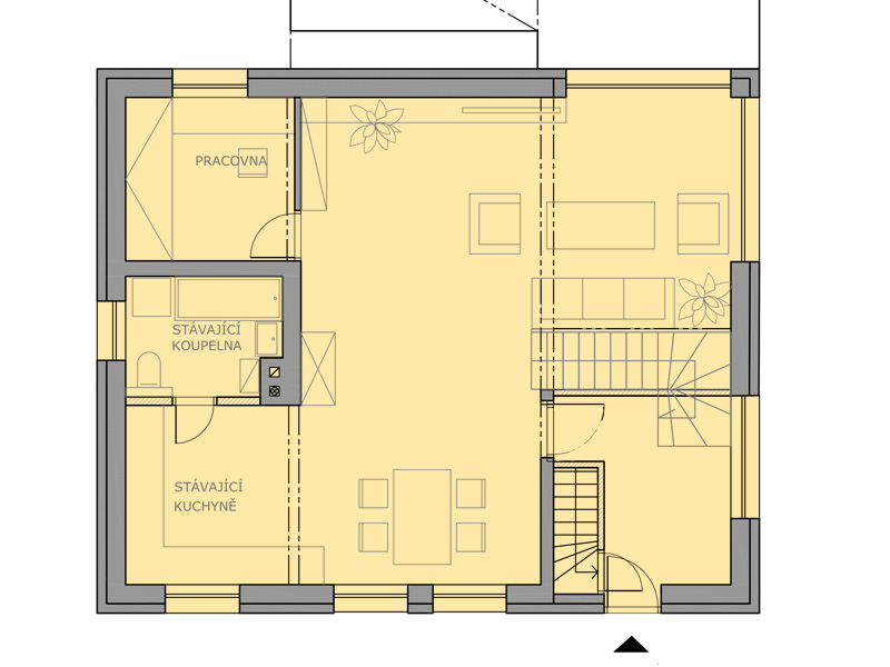
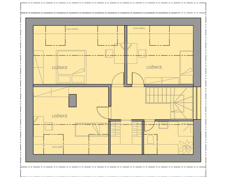
Celková rekonstrukce a dostavba původně malého rodiného domu z 50tých let. 60m2. Požadavkem klienta bylo vytvořit klasický dům se sedlovou střechou, za předpokladu zachování zrekonstruovaného interieru spodního podlaží, které velikostně nevyhovovalo. Původní přílepek k objektu sloužil současně jako vstup do sklepních prostor. Pro vyhovění požadavku na navýšení půdorysné plochy a vytvoření tvarově sjednoceného objektu, byla otočena osa krovu o 90%. Nynější plocha RD včetně obytného podkroví je 180m2.
Ing.arch et Ing. Markéta Veselá
DSP, ZELENEČ, 2014
